About the Project
Carriers of Light purchased the building at 1920 S. Highland Ave. in April 2024 after receiving municipal approval to operate a K-8 school at that location. Since then, we have completed interior demolition and are wrapping up design and engineering in preparation for receiving permits. Heavy construction work will begin in early 2026.
Design Philosophy
Facilities for Academic, Athletic, and Spiritual Rigor
Our design is based on best practices that reflect what works in educational environments based on decades of research
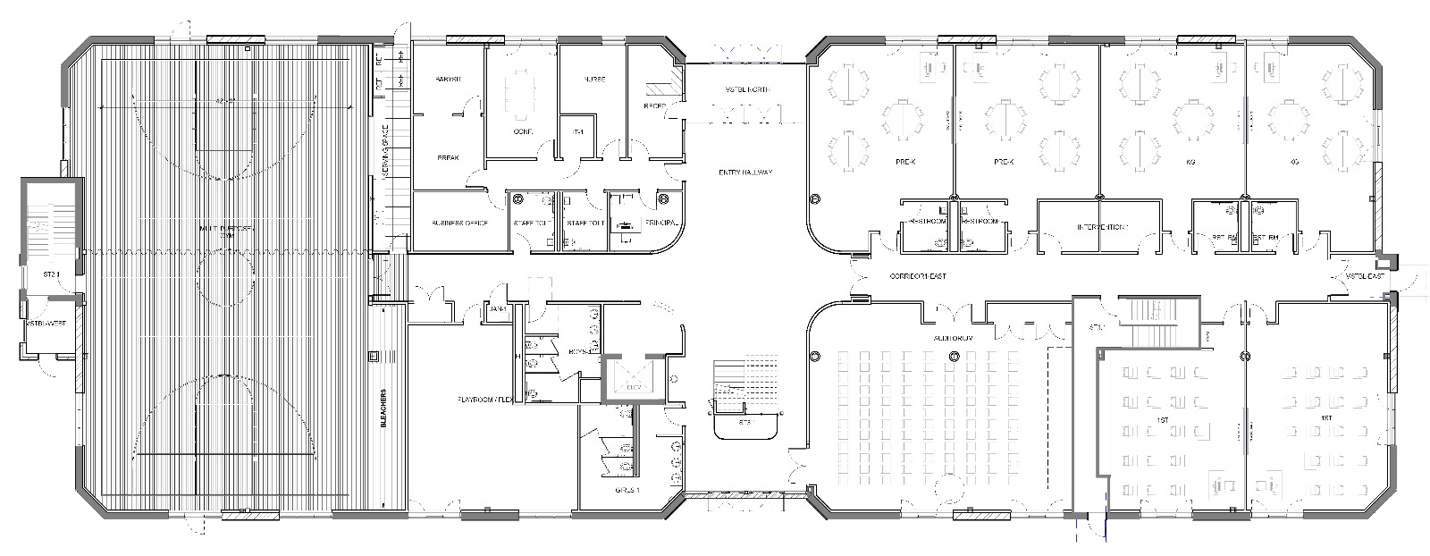
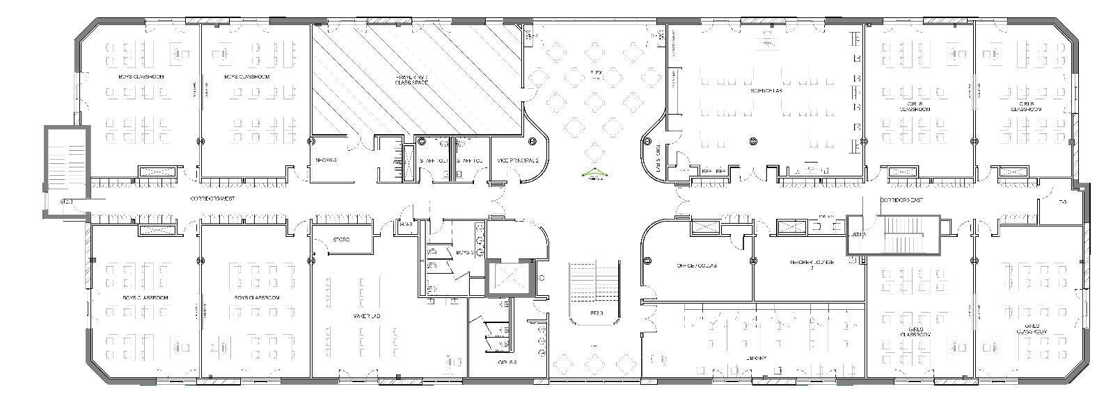
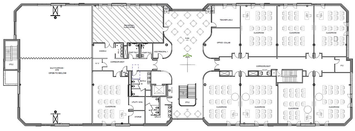
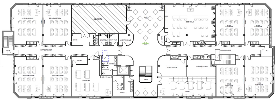
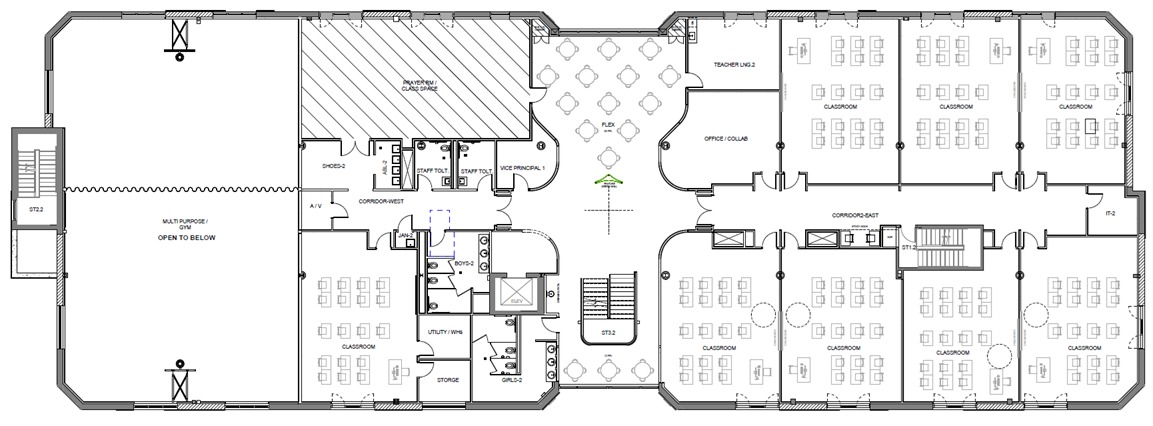
- Large classrooms – Our new classrooms have twice as much space as our current location while maintaining the same student to teacher ratio which provides a much more comfortable teaching and learning environment
- Gymnasium – A regulation junior high gymnasium provides for a proper physical education and extracurricular sports experience
- Dedicated religious studies facilities – The two dedicated musallas with wudu facilities form the center of Islamic and Quranic education in the building. These programs are the heart of what we do, not just an afterthought.
- Modern science lab designed with NextGen Science Standards (NGSS) compliance in mind
- Maker lab and library support a wide variety of educational activities
- Outdoor play area with turf and age appropriate play areas totals over 12,000 square feet.
Preserving a Small School Feel
While the building is much larger than our current location, we aim to preserve the intimate small school feel that we currently enjoy
- Administrators are distributed across each floor allowing closer relationships between students, staff and administrators
- Each floor serves one grade level (lower grades, elementary and junior high).
- The junior high floor is further broken out into a boy’s wing and girl’s wing. Older boys and girls have dedicated musallas. Modern bathrooms are designed to uphold the principles of tahara and privacy
- Each floor has a dedicated flex area for collaborative activities and meals. The second and third floors each have their own prayer and religious studies area. Students only need to leave their floor for recess and gym.
A Physically Safe Environment
A clean-sheet build out allows us to incorporate best practices for physical health and safety
- Secured access points to the building during operating hours
- Modern HVAC system to provide state of the art filtration and reduce illness transmission
- First-of-its-kind queue lane system in DuPage county for pickup and drop-off minimizes impact on neighborhood and allows for safe and efficient student movements.
There are many things you can do to support this project:
- Continue to make abundant Du’a for the success of this undertaking. Make Du’a for those that have (and will) volunteer their time, talents, and wealth to see this project to completion.
- Raise awareness of this project among your social circle and families.
- Think of how you can contribute to the success of this project. We will, of course, need you to contribute financially, but we also need talented people to help with fundraising, communications, and events.





